Одновальный шредер M600/1-600-5,5
Материал для дробления: ПЭТ - бутылки, пластик, фольга и многое другое.
Место использования: Станции перегруза отходов, мусоросортировочные станции, производственные предприятия, компании перевозчики отходов, торговые компании.
Преимущества:
• простота обслуживания:
• быстрый доступ к режущему валу.
• индивидуально подобранные сменные ножи.
• высокая производительность при низких затратах энергии:
• специально рассчитанная режущая часть обеспечивает энергосбережение измельчения.
• экономия на эксплуатационных расходах:
• длительный срок службы ножей.
• стальные лезвия полностью закалены, что позволяет проводить повторную заточку.
• надежность и продолжительность жизни:
• возможность работы с влажными материалами – внешнее расположение подшипников и защита их переборочными уплотнениями.
• низкий уровень шума и медленная работа ротора для возникновения небольшого количества пыли при операциях.
• настраиваемая пропускная способность и размер частиц:
• настраиваемые ножи и индивидуальный подбор сита.
• оптимальная пропускная способность благодаря правильному углу резки и измельчения даже при низких скоростях.
• экономичность, безопасность эксплуатации:
• возможность изготовления на заказ даже для мест, где мало места для размещения.
• система управления автоматически включает реверс и отключает питание для защиты машины от ущерба вследствие дополнительной нагрузки.
| Технические характеристики | Единицы измерения | Одновальный шредер M600/1-600 |
| Материал | - | пластик |
| Ножи | мм/крюк | 25/3 взаимозаменяемые с отверстиями |
| Мощность | кВт | 5,5 |
| Камера резки | мм | 600х500 |
| Количество валов | частей | 1 |
| Диаметр ножей | мм | 220 |
| Ширина ножей | мм | 25 |
| Количество ножей | частей | 25 |
| Диаметр вала | мм | 65 |
| Вспомогательное отверстие | мм | 20, 30, 40 |
| Скорость вращения | об/мин | переменная |
| Срок эксплуатации ножей | ч | 2000 |
| Производительность | кг/ч | 180 |
| Размер машины | мм | 1250х1380х1600 |
| Размер упаковки | мм | 1580х1700х1600 |
| Вес | кг | 980 |
| Прижимной механизм | - | опция |
| Исполнение для КГМ | - | опция |
| Пуско-наладка | - | не требуется |
| Информация | Для материала: ПЭТ-бутылок, пластиковых банок, фольги. Размер после шредирования материала зависит от решетки. Загрузочная воронка - шредер - распределительный щит в устройстах. | |
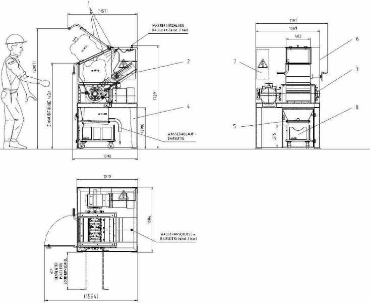
| Размеры M600/1-600 | ||
| X | мм | 602 |
| Y | мм | 502 |
| Z | мм | 298 |
| A1 | мм | 1581 |
| A2 | мм | 1262 |
| B | мм | 633 |
| D1 | мм | 576 |
| D2 | мм | 692 |
| Модель | M400/1-200 | M400/1-400-2,2 | M600/1-400 | M600/1-600 | M700/1-600 | M700/1-900 |
| Габариты (мм) | 1000x850x1600 | 1000x850x1600 | 1250х1380х1600 | 1581х602х502 | 2437х883х406 | 2737х883х406 |
| Мощность (кВт) | 2,2 | 2,2-3 | 5,5 | 5,5 | 15-30 | 15-30 |
| Количество валов (шт) | 1 | 1 | 1 | 1 | 1 | 1 |
| Камера резки (мм) | 200х215 | 405х215 | 600х500 | 600х500 | 580х670 | 880х670 |
| Ножи (шт) | 2 | 2 | 3 | 3 | 1 | 1 |
| Ширина ножей (мм) | 20 | 20 | 25 | 25 | 30 | 30 |
| Гарантия (г) | 2 | 2 | 2 | 2 | 2 | 2 |


Одновальный шредер M600/1-600-5,5
Материал для дробления: ПЭТ - бутылки, пластик, фольга и многое другое.
Место использования: Станции перегруза отходов, мусоросортировочные станции, производственные предприятия, компании перевозчики отходов, торговые компании.
Преимущества:
• простота обслуживания:
• быстрый доступ к режущему валу.
• индивидуально подобранные сменные ножи.
• высокая производительность при низких затратах энергии:
• специально рассчитанная режущая часть обеспечивает энергосбережение измельчения.
• экономия на эксплуатационных расходах:
• длительный срок службы ножей.
• стальные лезвия полностью закалены, что позволяет проводить повторную заточку.
• надежность и продолжительность жизни:
• возможность работы с влажными материалами – внешнее расположение подшипников и защита их переборочными уплотнениями.
• низкий уровень шума и медленная работа ротора для возникновения небольшого количества пыли при операциях.
• настраиваемая пропускная способность и размер частиц:
• настраиваемые ножи и индивидуальный подбор сита.
• оптимальная пропускная способность благодаря правильному углу резки и измельчения даже при низких скоростях.
• экономичность, безопасность эксплуатации:
• возможность изготовления на заказ даже для мест, где мало места для размещения.
• система управления автоматически включает реверс и отключает питание для защиты машины от ущерба вследствие дополнительной нагрузки.
| Технические характеристики | Единицы измерения | Одновальный шредер M600/1-600 |
| Материал | - | пластик |
| Ножи | мм/крюк | 25/3 взаимозаменяемые с отверстиями |
| Мощность | кВт | 5,5 |
| Камера резки | мм | 600х500 |
| Количество валов | частей | 1 |
| Диаметр ножей | мм | 220 |
| Ширина ножей | мм | 25 |
| Количество ножей | частей | 25 |
| Диаметр вала | мм | 65 |
| Вспомогательное отверстие | мм | 20, 30, 40 |
| Скорость вращения | об/мин | переменная |
| Срок эксплуатации ножей | ч | 2000 |
| Производительность | кг/ч | 180 |
| Размер машины | мм | 1250х1380х1600 |
| Размер упаковки | мм | 1580х1700х1600 |
| Вес | кг | 980 |
| Прижимной механизм | - | опция |
| Исполнение для КГМ | - | опция |
| Пуско-наладка | - | не требуется |
| Информация | Для материала: ПЭТ-бутылок, пластиковых банок, фольги. Размер после шредирования материала зависит от решетки. Загрузочная воронка - шредер - распределительный щит в устройстах. | |
| Размеры M600/1-600 | ||
| X | мм | 602 |
| Y | мм | 502 |
| Z | мм | 298 |
| A1 | мм | 1581 |
| A2 | мм | 1262 |
| B | мм | 633 |
| D1 | мм | 576 |
| D2 | мм | 692 |
| Модель | M400/1-200 | M400/1-400-2,2 | M600/1-400 | M600/1-600 | M700/1-600 | M700/1-900 |
| Габариты (мм) | 1000x850x1600 | 1000x850x1600 | 1250х1380х1600 | 1581х602х502 | 2437х883х406 | 2737х883х406 |
| Мощность (кВт) | 2,2 | 2,2-3 | 5,5 | 5,5 | 15-30 | 15-30 |
| Количество валов (шт) | 1 | 1 | 1 | 1 | 1 | 1 |
| Камера резки (мм) | 200х215 | 405х215 | 600х500 | 600х500 | 580х670 | 880х670 |
| Ножи (шт) | 2 | 2 | 3 | 3 | 1 | 1 |
| Ширина ножей (мм) | 20 | 20 | 25 | 25 | 30 | 30 |
| Гарантия (г) | 2 | 2 | 2 | 2 | 2 | 2 |

