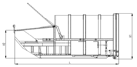
Мобильный компактор предназначен для прессования отходов в целях экономии при перевозке. Коэффициент прессования для картона, пленки, бумаги составляет 1:10. Коэффициент прессования для твердых бытовых отходов (ТБО) составляет 1:3. При использовании мобильного компактора экономический эффект достигается на экономии ГСМ автотранспорта, снижения количества поездок автотранспорта, экономии ФОТ водителей, снижения амортизации автомобилей. Отходы загружаются (ручным способом или при помощи опрокидывателя баков 1,1 м3 или 0,8 м3) в прессовальное окно компактора и запрессовываются в контейнерную часть. После заполнения контейнера на 80% система сигнализирует о наполнении. При 100%-м наполнении компактор останавливает процесс прессования. После заполнения производится погрузка компактора на автотранспорт при помощи крюкового или тросового захватов и вывозится на место захоронения отходов или иное место по назначению.
К преимуществам данной модели можно отнести:
• мобильность конструкции.
• простоту в использовании, управление осуществляется при помощи блока управления.
• специальное обучение сотрудников не требуется.
• герметичность хранения отходов в компакторе, что исключает доступ к ним персонала или животных.
• отсутствие претензий со стороны проверяющих органов (санитарное состояние объекта).
Опции:
• система отвода жидкости.
• дополнительный пульт управления.
• многокомпонентная окраска.
• крышка для загрузочного окна.
• система уведомления с помощью смс.
• подогрев масла.
• тубус для загрузочного окна.
• озонатор.
• подогрев дна.
• опрокидыватель баков 1,1-0,8м3.
| Технические характеристики | Единицы измерения | VSK 10 |
| Двигатель | кВт | 4 |
| Напряжение | А | 16 |
| Модуль управления | - | LOGO 24 Siemens |
| Сила прессования | т | 30 |
| Объем масла в системе | л | 80 |
| Масса | кг | 2745 |
| Высота | мм | 2400 |
| Ширина | мм | 2000 |
| Длина | мм | 4500 |
| Металл | мм | 3-10 мм, Ст.37-ст.52 |
| Объем одного цикла | м3 | 0.8 |
| Производительность | м3/ч | 60 |
| Цикл прессования | с | 50 |
| Гарантия | год | 2 |
| Модель | VSK 7,5 | VSK 10 | VSK 16 | VSK 20 | VSK 24 |
| Сила прессования (т) | 30 | 30 | 30 | 35 | 35 |
| Мощность (кВт) | 4 | 4 | 5,5 | 5,5 | 5,5 |
| Габариты (мм) | 3800х2000х2400 | 4500х2000х2400 | 5800х2450х2500 | 6600х2450х2500 | 7040х2450х2500 |
| Время цикла (с) | 50 | 50 | 50 | 50 | 50 |
| Производительность (м3/ч) | 55 | 60 | 80 | 100 | 100 |
| Объем контейнера (м3) | 7,5 | 10 | 16 | 20 | 24 |
| Гарантия | 2 года | 2 года | 2 года | 2 года | 2 года |

Мобильный компактор предназначен для прессования отходов в целях экономии при перевозке. Коэффициент прессования для картона, пленки, бумаги составляет 1:10. Коэффициент прессования для твердых бытовых отходов (ТБО) составляет 1:3. При использовании мобильного компактора экономический эффект достигается на экономии ГСМ автотранспорта, снижения количества поездок автотранспорта, экономии ФОТ водителей, снижения амортизации автомобилей. Отходы загружаются (ручным способом или при помощи опрокидывателя баков 1,1 м3 или 0,8 м3) в прессовальное окно компактора и запрессовываются в контейнерную часть. После заполнения контейнера на 80% система сигнализирует о наполнении. При 100%-м наполнении компактор останавливает процесс прессования. После заполнения производится погрузка компактора на автотранспорт при помощи крюкового или тросового захватов и вывозится на место захоронения отходов или иное место по назначению.
К преимуществам данной модели можно отнести:
• мобильность конструкции.
• простоту в использовании, управление осуществляется при помощи блока управления.
• специальное обучение сотрудников не требуется.
• герметичность хранения отходов в компакторе, что исключает доступ к ним персонала или животных.
• отсутствие претензий со стороны проверяющих органов (санитарное состояние объекта).
Опции:
• система отвода жидкости.
• дополнительный пульт управления.
• многокомпонентная окраска.
• крышка для загрузочного окна.
• система уведомления с помощью смс.
• подогрев масла.
• тубус для загрузочного окна.
• озонатор.
• подогрев дна.
• опрокидыватель баков 1,1-0,8м3.
| Технические характеристики | Единицы измерения | VSK 10 |
| Двигатель | кВт | 4 |
| Напряжение | А | 16 |
| Модуль управления | - | LOGO 24 Siemens |
| Сила прессования | т | 30 |
| Объем масла в системе | л | 80 |
| Масса | кг | 2745 |
| Высота | мм | 2400 |
| Ширина | мм | 2000 |
| Длина | мм | 4500 |
| Металл | мм | 3-10 мм, Ст.37-ст.52 |
| Объем одного цикла | м3 | 0.8 |
| Производительность | м3/ч | 60 |
| Цикл прессования | с | 50 |
| Гарантия | год | 2 |
| Модель | VSK 7,5 | VSK 10 | VSK 16 | VSK 20 | VSK 24 |
| Сила прессования (т) | 30 | 30 | 30 | 35 | 35 |
| Мощность (кВт) | 4 | 4 | 5,5 | 5,5 | 5,5 |
| Габариты (мм) | 3800х2000х2400 | 4500х2000х2400 | 5800х2450х2500 | 6600х2450х2500 | 7040х2450х2500 |
| Время цикла (с) | 50 | 50 | 50 | 50 | 50 |
| Производительность (м3/ч) | 55 | 60 | 80 | 100 | 100 |
| Объем контейнера (м3) | 7,5 | 10 | 16 | 20 | 24 |
| Гарантия | 2 года | 2 года | 2 года | 2 года | 2 года |
