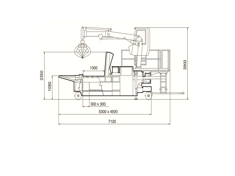
Пресс для металла и металлолома CPB 100
Пресс для металла CPB 100 предназначен для пакетирования металлолома с прочностью при растяжении 440 MПа с толщиной листа до 3 мм и отходов из цветного металла. Пресс обозначен знаком соответствия CE и поставляется также с ES сертификатом соответствия.
Преимущества:
• пресс может работать с загрузкой лома при помощи загрузочной воронки или гидравлического манипулятора с кабиной (по требованию заказчика).
• пресс может быть оснащен шасси, дающим возможность перегрузки в месте завода без необходимости применения крана.
• пресс изготовлен так, что его можно легко перевозить.
• пресс-камера и крышка имеют по трем сторонам резцы, дающие возможность резки выступающих частей и очень тонкого листа (0,2 мм).
• пресс-камера и толкатели облицованы износостойкими листами с долгим сроком службы.
• пресс может работать на свободном пространстве и при низких температурах до -20° C.
| Технические характеристики | Единицы измерения | Параметры |
| Размеры пресса с открытой крышкой (ДхШхВ) | мм | 3370x2350x4 960 |
| Размеры загрузочного отверстия (ДхШхВ) | мм | 1000x650x1 300 |
| Размеры пакета (ДхШхВ) | мм | 300x300xрегулируется |
| Удельное давление на толкателедопрессовочного устройства | MПa | 11,1 |
| Плотность пакета для стали | кг/дм-3 | 3-4 |
| Максимальная масса пакета | кг | 150 |
| Производительность у квадратных пакетов по виду металлолома | т/ч-1 | 2-3 |
| Производительность по виду металлолома | т/ч-1 | 3-5 |
| Максимальная толщина пакетируемого металлолома с прочностью до 440 MПa | мм | 3 |
| Усилие цилиндра крышки | кН | 500 |
| Максимальная рабочая скорость крышки | ммс-1 | 300 |
| Усилие цилиндров подпрессовочного устройства | кН | 1000 |
| Усилие цилиндра допрессовочного устройства | кН | 1000 |
| Рабочая скорость допрессовочного устройства | ммс-1 | 100 |
| Ход цилиндра крышки | мм | 845 |
| Ход цилиндра подпрессовочного устройства | мм | 1125 |
| Ход цилиндра допрессовочного устройства | мм | 1150 |
| Потребляемая мощность пресса | кВт | 35 |
| Максимальное рабочее избыточное давление | МПа | 32 |

Пресс для металла и металлолома CPB 100
Пресс для металла CPB 100 предназначен для пакетирования металлолома с прочностью при растяжении 440 MПа с толщиной листа до 3 мм и отходов из цветного металла. Пресс обозначен знаком соответствия CE и поставляется также с ES сертификатом соответствия.
Преимущества:
• пресс может работать с загрузкой лома при помощи загрузочной воронки или гидравлического манипулятора с кабиной (по требованию заказчика).
• пресс может быть оснащен шасси, дающим возможность перегрузки в месте завода без необходимости применения крана.
• пресс изготовлен так, что его можно легко перевозить.
• пресс-камера и крышка имеют по трем сторонам резцы, дающие возможность резки выступающих частей и очень тонкого листа (0,2 мм).
• пресс-камера и толкатели облицованы износостойкими листами с долгим сроком службы.
• пресс может работать на свободном пространстве и при низких температурах до -20° C.
| Технические характеристики | Единицы измерения | Параметры |
| Размеры пресса с открытой крышкой (ДхШхВ) | мм | 3370x2350x4 960 |
| Размеры загрузочного отверстия (ДхШхВ) | мм | 1000x650x1 300 |
| Размеры пакета (ДхШхВ) | мм | 300x300xрегулируется |
| Удельное давление на толкателедопрессовочного устройства | MПa | 11,1 |
| Плотность пакета для стали | кг/дм-3 | 3-4 |
| Максимальная масса пакета | кг | 150 |
| Производительность у квадратных пакетов по виду металлолома | т/ч-1 | 2-3 |
| Производительность по виду металлолома | т/ч-1 | 3-5 |
| Максимальная толщина пакетируемого металлолома с прочностью до 440 MПa | мм | 3 |
| Усилие цилиндра крышки | кН | 500 |
| Максимальная рабочая скорость крышки | ммс-1 | 300 |
| Усилие цилиндров подпрессовочного устройства | кН | 1000 |
| Усилие цилиндра допрессовочного устройства | кН | 1000 |
| Рабочая скорость допрессовочного устройства | ммс-1 | 100 |
| Ход цилиндра крышки | мм | 845 |
| Ход цилиндра подпрессовочного устройства | мм | 1125 |
| Ход цилиндра допрессовочного устройства | мм | 1150 |
| Потребляемая мощность пресса | кВт | 35 |
| Максимальное рабочее избыточное давление | МПа | 32 |
