Завод по переработке холодильников производительность 10 штук в час
Холодильник разбирается и разделяется на отдельные материалы: черные металлы, пластик, алюминий, медь, полиуретан и стекло. Около 90% полученного сырья подлежит повторному использованию и продается. Процесс переработки холодильников завершается отсасыванием газов, которые используются в системах охлаждения. Хранение этих газов в криогенной установке обеспечивает условие, при котором никакие ядовитые выделения не попадают в атмосферу. Полная автоматизация процессов. Установка позволяет значительно снизить эксплуатационные расходы. Для выполнения этапа измельчения требуется не более 2-3 сотрудников.
Благодаря эксклюзивным технологиям установка обладает важными характеристиками:
• абсолютно безопасная переработка холодильников с содержанием алифатических фторсодержащих углеводородов (фреона) и пентана.
• положительным воздействием на окружающую среду благодаря системе всасывания и обезвреживания воздуха, отсутствуют токсичные выделения в атмосферу.
• способностью обеспечить высокое качество продукции на выходе.
• максимальные размеры холодильников для системы: размеры до 1050*950*2000 мм, вес не более 80 кг.
• отличительной особенностью данного завода являются очень низкие затраты на обслуживание.
Характеристики линии:
• производительность: 10 штук в час.
• установленная мощность: 200 кВт.
На входе:
• подлежащие утилизации холодильники.
На выходе:
• компрессоры.
• алюминий.
• медь.
• черные металлы.
• полиуретан.
• пластики.
• стекло.
• фреон (пентан).







Особые характеристики:
• очень низкие затраты при обслуживании линии.
Максимальный размер на загрузке (Ш*Д*В) до - 800*1000*2000.
Стандартные холодильники имеют размер 600 x 600 x 850 мм.
По стандартным холодильникам следующая статистика чистоты по отношению к общему весу фракции:
|
Наименование |
Параметры |
Единица измерения |
|
Металл |
99 |
% |
|
Цветной металл |
94-98 (6% пластмасса) |
% |
|
Пластик |
90-94 (10% цветных металлов) |
% |
|
Пенополиуретан |
85 (15% пластик и фольга) |
% |
|
Фреон R11 в пенополиуретане |
<0,2 = 2 грамма R11/кг пенополиуретана |
% |
|
Остатки адгезии пенополиуретана на металле |
<0,3 |
% |
|
Остатки адгезии пенополиуретана на цветном металле |
<0,3 |
% |
|
Остатки адгезии пенополиуретана на пластике |
<0,5 |
% |
До строительства самой линии завода в помещении должны быть готовы:
• компрессоры.
• строительные работы.
• поведены кабели.
• интернет.
• разделительные ограждения и т.д.
Необходимые площади для KZA 10:
• секция демонтажа: 20000 x 9000 x 4000 мм (ДxШxВ).
• секция ручной сортировки: 30000 x 20000 x 13000 мм (ДxШxВ).
• секция сжижения: 12000 x 4000 x 5000 мм (ДxШxВ).
Комплект поставки:
• комплексная поставка автоматической части, механической сортировки и блока сепарации.
• система очистки воздуха с фильтрами.
• завода по сжижению для R11 / R12 и пентана.
Если количество холодильников не настолько большое и смены не больше 8 часов, то могут быть спроектированы другие варианты завода. Это означает что первую смену можно отдать под холодильники, а вторую смену под электронные отходы - потребует небольшая доработки завода.
ЗАВОД ПЕРЕРАБОТКИ ХОЛОДИЛЬНИКОВ

ПРИМЕРЫ ФРАКЦИЙ ВТОРИЧНОГО СЫРЬЯ ПРИ ПЕРЕРАБОТКЕ ЭЛЕКТРОННОГО ЛОМА (ЭЛЕКТРОНИКИ):

ПЕРЕРАБОТКА ЭЛЕКТРОННОГО ЛОМА:

ЭЛЕКТРОННЫЙ ЛОМ ДО ИЗМЕЛЬЧЕНИЯ (ШРЕДИРОВАНИЯ):

ЭЛЕКТРОННЫЙ ЛОМ ПОСЛЕ ИЗМЕЛЬЧЕНИЯ (ШРЕДИРОВАНИЯ):

ПРАКТИЧЕСКИЙ ПРИМЕР НАРУШЕНИЙ ЗАГРУЗКИ ЦЕПНОГО КОНВЕЙЕРА ПОСТОРОННИМ МАТЕРИАЛОМ:

СЕПАРАЦИЯ МЕТАЛЛОВ И СОРТИРОВОЧНЫЕ КАБИНЫ:

СОРТИРОВОЧНЫЕ КАБИНЫ ДЛЯ КОНДИЦИОНЕРОВ:
РАЗГРУЗОЧНЫЕ КОНТЕЙНЕРЫ ВНИЗУ СОРТИРОВОЧНЫХ КАБИН ДЛЯ КОНДИЦИОНЕРОВ:

ФРАКЦИИ РУЧНОЙ СОРТИРОВКИ ИЗ ЭТИХ КАБИН:


СЕПАРАЦИЯ МИНЕРАЛОВ (СТЕКЛО/БЕТОН):

ГРАНУЛЯЦИЯ ОСТАТОЧНЫХ ФРАКЦИЙ:

ОПТИЧЕСКАЯ СЕПАРАЦИЯ:

СЕПАРАЦИЯ ТОНКОДИСПЕРСНЫХ ЧАСТИЦ И ФИЛЬТРАЦИЯ ПЫЛИ:

КОНТРОЛЬНАЯ ПАНЕЛЬ:

| Технические характеристики | Единицы измерения | Параметры |
| Производительность | шт/ч | 10 |
| Установленная мощность | кВт | 200 |
| Перерабатывающий материал | ||
| На входе | подлежащие утилизации холодильники | |
| На выходе |
компрессоры, алюминий, сталь, медь, пластики, стекло, полиуретан, R11, R12/R134а, пентан |
|

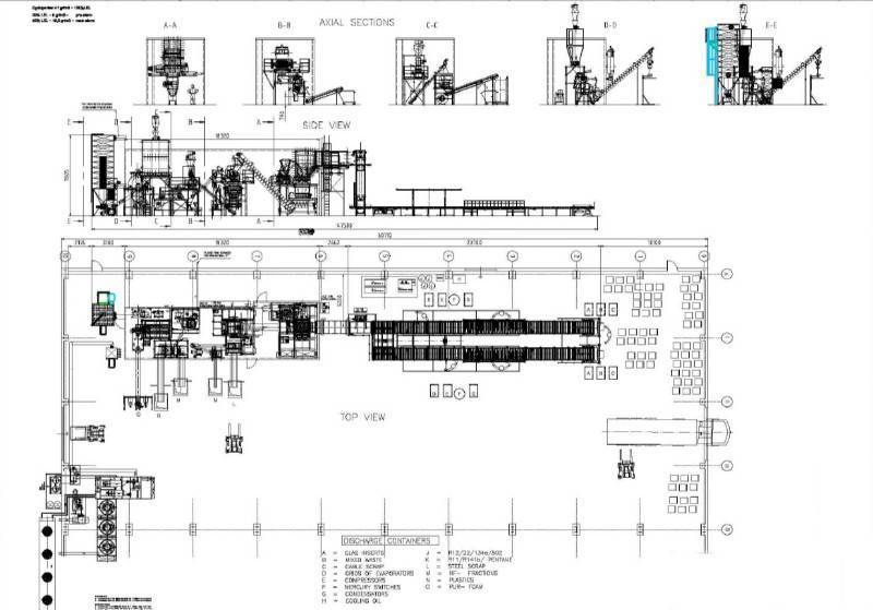
Схема завода по переработке холодильников KZA60:

Несколько других схем:





Общие принципы построения заводов:




Завод по переработке холодильников производительность 10 штук в час
Холодильник разбирается и разделяется на отдельные материалы: черные металлы, пластик, алюминий, медь, полиуретан и стекло. Около 90% полученного сырья подлежит повторному использованию и продается. Процесс переработки холодильников завершается отсасыванием газов, которые используются в системах охлаждения. Хранение этих газов в криогенной установке обеспечивает условие, при котором никакие ядовитые выделения не попадают в атмосферу. Полная автоматизация процессов. Установка позволяет значительно снизить эксплуатационные расходы. Для выполнения этапа измельчения требуется не более 2-3 сотрудников.
Благодаря эксклюзивным технологиям установка обладает важными характеристиками:
• абсолютно безопасная переработка холодильников с содержанием алифатических фторсодержащих углеводородов (фреона) и пентана.
• положительным воздействием на окружающую среду благодаря системе всасывания и обезвреживания воздуха, отсутствуют токсичные выделения в атмосферу.
• способностью обеспечить высокое качество продукции на выходе.
• максимальные размеры холодильников для системы: размеры до 1050*950*2000 мм, вес не более 80 кг.
• отличительной особенностью данного завода являются очень низкие затраты на обслуживание.
Характеристики линии:
• производительность: 10 штук в час.
• установленная мощность: 200 кВт.
На входе:
• подлежащие утилизации холодильники.
На выходе:
• компрессоры.
• алюминий.
• медь.
• черные металлы.
• полиуретан.
• пластики.
• стекло.
• фреон (пентан).







Особые характеристики:
• очень низкие затраты при обслуживании линии.
Максимальный размер на загрузке (Ш*Д*В) до - 800*1000*2000.
Стандартные холодильники имеют размер 600 x 600 x 850 мм.
По стандартным холодильникам следующая статистика чистоты по отношению к общему весу фракции:
|
Наименование |
Параметры |
Единица измерения |
|
Металл |
99 |
% |
|
Цветной металл |
94-98 (6% пластмасса) |
% |
|
Пластик |
90-94 (10% цветных металлов) |
% |
|
Пенополиуретан |
85 (15% пластик и фольга) |
% |
|
Фреон R11 в пенополиуретане |
<0,2 = 2 грамма R11/кг пенополиуретана |
% |
|
Остатки адгезии пенополиуретана на металле |
<0,3 |
% |
|
Остатки адгезии пенополиуретана на цветном металле |
<0,3 |
% |
|
Остатки адгезии пенополиуретана на пластике |
<0,5 |
% |
До строительства самой линии завода в помещении должны быть готовы:
• компрессоры.
• строительные работы.
• поведены кабели.
• интернет.
• разделительные ограждения и т.д.
Необходимые площади для KZA 10:
• секция демонтажа: 20000 x 9000 x 4000 мм (ДxШxВ).
• секция ручной сортировки: 30000 x 20000 x 13000 мм (ДxШxВ).
• секция сжижения: 12000 x 4000 x 5000 мм (ДxШxВ).
Комплект поставки:
• комплексная поставка автоматической части, механической сортировки и блока сепарации.
• система очистки воздуха с фильтрами.
• завода по сжижению для R11 / R12 и пентана.
Если количество холодильников не настолько большое и смены не больше 8 часов, то могут быть спроектированы другие варианты завода. Это означает что первую смену можно отдать под холодильники, а вторую смену под электронные отходы - потребует небольшая доработки завода.
ЗАВОД ПЕРЕРАБОТКИ ХОЛОДИЛЬНИКОВ

ПРИМЕРЫ ФРАКЦИЙ ВТОРИЧНОГО СЫРЬЯ ПРИ ПЕРЕРАБОТКЕ ЭЛЕКТРОННОГО ЛОМА (ЭЛЕКТРОНИКИ):

ПЕРЕРАБОТКА ЭЛЕКТРОННОГО ЛОМА:

ЭЛЕКТРОННЫЙ ЛОМ ДО ИЗМЕЛЬЧЕНИЯ (ШРЕДИРОВАНИЯ):

ЭЛЕКТРОННЫЙ ЛОМ ПОСЛЕ ИЗМЕЛЬЧЕНИЯ (ШРЕДИРОВАНИЯ):

ПРАКТИЧЕСКИЙ ПРИМЕР НАРУШЕНИЙ ЗАГРУЗКИ ЦЕПНОГО КОНВЕЙЕРА ПОСТОРОННИМ МАТЕРИАЛОМ:

СЕПАРАЦИЯ МЕТАЛЛОВ И СОРТИРОВОЧНЫЕ КАБИНЫ:

СОРТИРОВОЧНЫЕ КАБИНЫ ДЛЯ КОНДИЦИОНЕРОВ:
РАЗГРУЗОЧНЫЕ КОНТЕЙНЕРЫ ВНИЗУ СОРТИРОВОЧНЫХ КАБИН ДЛЯ КОНДИЦИОНЕРОВ:

ФРАКЦИИ РУЧНОЙ СОРТИРОВКИ ИЗ ЭТИХ КАБИН:


СЕПАРАЦИЯ МИНЕРАЛОВ (СТЕКЛО/БЕТОН):

ГРАНУЛЯЦИЯ ОСТАТОЧНЫХ ФРАКЦИЙ:

ОПТИЧЕСКАЯ СЕПАРАЦИЯ:

СЕПАРАЦИЯ ТОНКОДИСПЕРСНЫХ ЧАСТИЦ И ФИЛЬТРАЦИЯ ПЫЛИ:

КОНТРОЛЬНАЯ ПАНЕЛЬ:

| Технические характеристики | Единицы измерения | Параметры |
| Производительность | шт/ч | 10 |
| Установленная мощность | кВт | 200 |
| Перерабатывающий материал | ||
| На входе | подлежащие утилизации холодильники | |
| На выходе |
компрессоры, алюминий, сталь, медь, пластики, стекло, полиуретан, R11, R12/R134а, пентан |
|

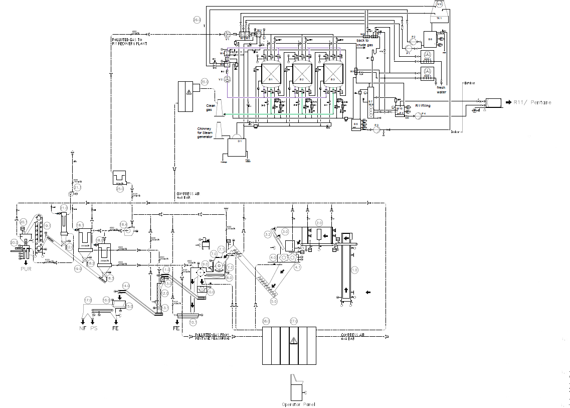
Схема завода по переработке холодильников KZA60:

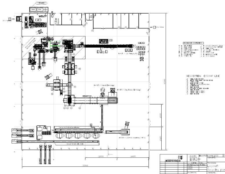
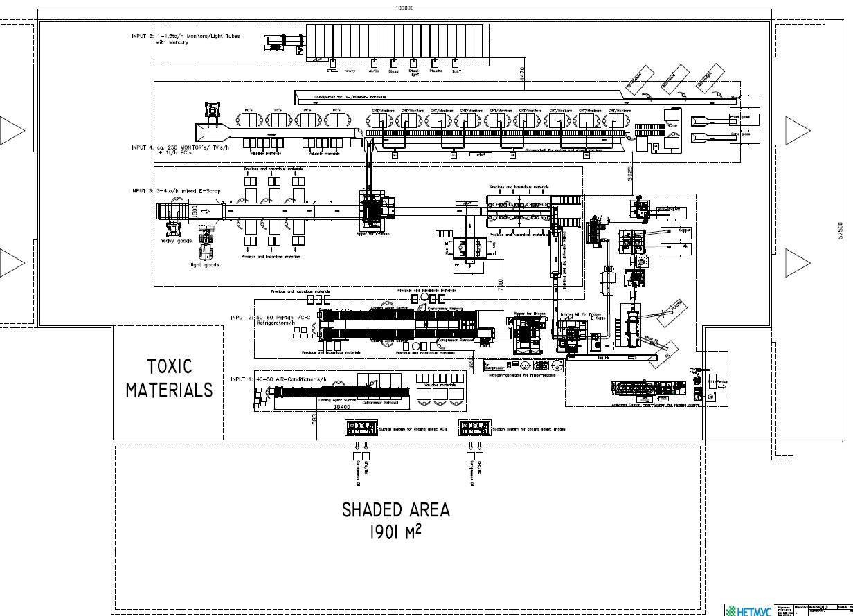
Несколько других схем:





Общие принципы построения заводов:



