Завод по очистке стали из шин до чистоты не менее 98%
Материал для переработки: Стальная проволока от использованных шин (без бортовой части шин грузовых автомобилей), содержащая максимум 25% резины и текстиль.
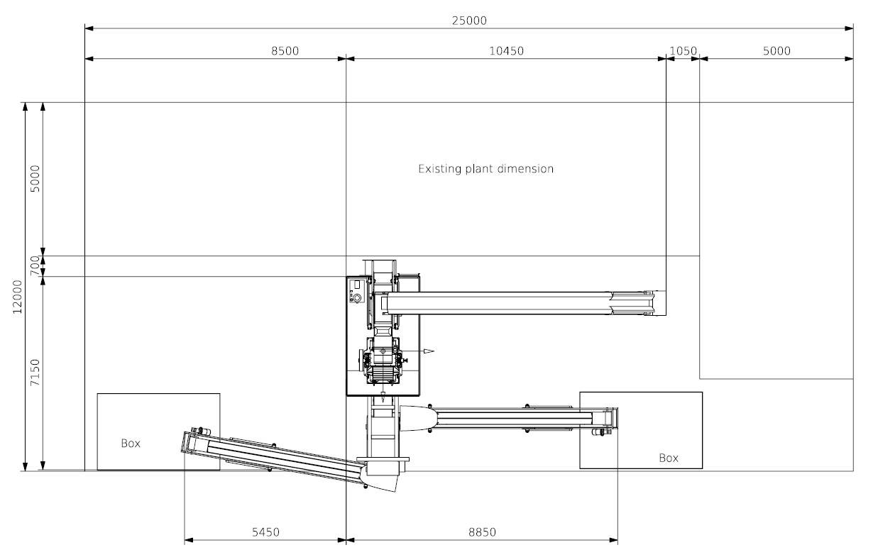
Место использования: Линии для переработки автомобильных шин, производственные предприятия, станции перегруза мусора, мусоросортировочные комплексы, полигоны.
Цель переработки: Стальная проволока очищается от резины и текстильного волокна (до 2% веса), следов резины и текстильного волокна, пыли.
Производительность: 1 тонна в час
Описание элементов завода:
Позиция 1.
Код: NGS5/9 - Резиновая конвейерная лента
Рама конвейера сделана из слегка изогнутой железной пластины и профилированных труб. Конструкция легкая, но в то же время прочная. Резиновая лента скользит по гладким роликам, закрепленным на раме. Лента приводится в движение электрическим двигателем, подключенным к редуктору. Поворотные барабаны для самовыравнивания ленты с противоскользящим резиновым покрытием роликов. Установлена на самовыравнивающихся стойках. Система выравнивания роликов с натяжением ленты.
Позиция 2.
Код: F5T - Специальная молотковая дробилка.
Молотковая дробилка предназначена для отделения стальной проволоки от использованных шин, повышая ценность конечной продукции и очищая ее от резины. Ее детали спроектированы и скомпонованы так, чтобы следовать принципам обработки стальной проволоки, сохраняя такие же по гибкости элементы, из каких состоит сама шина.
Запатентованная конструкция лотка позволяет быстрое и простое изменение обработки и безопасное техобслуживание.
Молотковая дробилка состоит из:
1. Загрузочной ленты с питателем
2. Камеры дробления
3. Рамы-держателя
4. Аварийной двери и защитных экранов
5. Электрической панели управления
6. Электрического двигателя
7. Гидравлической системы
1. Загрузочная лента с питателем
Подает материал в мельницу, дозирует его и предотвращает возможное засорение размольной камеры.
• Ее движение контролируется электрической панелью управления.
• Резиновая лента.
• Специальный питатель, установленный на высоком уровне, для более простой загрузки.
• Ее поднимает поперечная балка-опора из сплава HeA.
2. Камера дробления
• Мельница состоит из 1 крышки, 1 рамы-держателя, 1 ротора и 1 лотка. Эти детали полностью сделаны из конструкционной стали S355J2.
• Высокое качество переработки и очистки стальной проволоки (благодаря конструкции ротора и лотка).
• Гидравлическая блокировка крышки и рамы-держателя во время переработки. Эту систему можно легко разблокировать для технического обслуживания.
• Внутренняя сторона выполнена из противоизносной стали (эффективность измельчения, долговечность, простая и быстрая замена, экономия денег и времени).
3. Рама-держатель
• Выполнена из Fe510d.
• Балки сделаны из HeA.
• Дополнена антивибрационными стойками, лестницами и помостами с перилами.
• Оборудована кабелепроводами и гидравлической системой на стороне машины.
4. Аварийная дверь и защитные экраны
• Аварийная дверь контролируется системой управления программы.
• Защитные кожухи для движущихся компонентов (приводного ремня, блоков ротора и двигателя, махового колеса двигателя).
5. Электрическая панель управления
• Содержит в себе устройства управления и контроля, устройства включения питания и электрического привода, цепи управления безопасностью и систему ПЛК.
• Сенсорный экран для легкой настройки и визуализации рабочих параметров.
• Программа управления: регулирует процесс измельчения различных материалов; сообщает пользователю о периодических проверках; блокирует мельницу при необходимости.
6. Электрический двигатель
• Установленная мощность: 90 кВт
• Трапециевидный приводной ремень.
• Гибкая опора с системой гидравлического позиционирования.
7. Гидравлическая система
• Оборудована антивибрационными стойками.
• Трубки и кнопочная станция для управления следующими движениями:
открыть/закрыть крышку;
крепление крышек к раме-держателю;
движение гибкой опоры для натяжения ремня.
Преимущества:
• Прочная конструкция, созданная для эффективного измельчения
• Мельница открывается гидравлической системой, обеспечивая быстрый и простой доступ в камеру измельчения
• Двухуровневая рама-держатель для улучшения эффективности и повышения комфорта и безопасности при чистке и техническом обслуживании
• Загрузочная лента приводится в движение гидравлической системой. Специальная конфигурация, предотвращающая засорение камеры измельчения
• Ротор можно подцепить к крышке, чтобы поднять его для техобслуживания
• Ротор со взаимозаменяемыми молотами
• Запатентованный заменяемый лоток:
• быстрая и простая замена, которая позволяет различную обработку;
• быстрое, легкое и безопасное техобслуживание для уменьшения времени простоя;
• взаимозаменяемые решетки;
• легко устанавливаемая конструкция лотка для подстройки на различные рабочие процессы;
• Легко заменяемые устройства защиты;
• Комплекс программного управления;
• Для использования не нужна высокая квалификация персонала.
Позиция 3.
Код: VVP9/3 - Динамический сепаратор
Вибрационный стол, разработанное компанией, предназначенное для отделения стальной проволоки (выходящей из мельницы) от резины и текстильного волокна.
Позиция 4.
Код: NGS5/8 - Резиновая конвейерная лента (выгрузка резины)
Рама конвейера сделана из слегка изогнутой железной пластины и профилированных труб на электрической сварке. Конструкция легкая, но в то же время прочная. Резиновая лента скользит по гладким роликам, закрепленным на раме. Лента приводится в движение электрическим двигателем, подключенным к редуктору. Поворотные барабаны для самовыравнивания ленты, с противоскользящим резиновым покрытием роликов. Установлен на самовыравнивающихся стойках. Система выравнивания роликов с натяжением ленты.
Позиция 5.
Код: OF7 - Надленточный магнитный сепаратор
Рама сепаратора с верхней лентой представляет собой прочную конструкцию из 160-мм U-образного железного профиля, что обеспечивает устойчивость и в то же время легковесность машины. Внутри сепаратора активно перманентное не отключаемое магнитное поле. Система дополнена резиновой лентой с замкнутыми кольцами на термической сварке и предназначена для извлечения ферромагнетиков. Машина по извлечению ферромагнетиков приводится в движение электродвигателем, подключенным к редуктору.
Позиция 6.
Код: NGS5/8 - Резиновая конвейерная лента (выгрузка железа)
Рама конвейера сделана из слегка изогнутой железной пластины и профилированных труб на электрической сварке. Конструкция легкая, но в то же время прочная. Резиновая лента скользит по гладким роликам, закрепленным на раме. Лента приводится в движение электрическим двигателем, подключенным к редуктору. Поворотные барабаны для самовыравнивания ленты, с противоскользящим резиновым покрытием роликов. Установлен на самовыравнивающихся стойках. Система выравнивания роликов с натяжением ленты.
| Технические характеристики | Единицы измерения | Параметры |
| NGS5/9 - Резиновая конвейерная лента | ||
| Двигатель | В, Гц | 50, 220/380 |
| Рисунок резины | Рисунок «в елочку» | |
| Ширина рисунка | мм | 500 |
| Длина рисунка | м | 9 |
| F5T Специальная молотковая дробилка | ||
| Электродвигатель с устройством плавного пуска | кВт | 90 |
| Передача | Трапециевидный приводной ремень | |
| Камера загрузки | мм | 520x430 |
| Вес | кг | 5000 |
| Производительность (в зависимости от перерабатываемого материала и типа решетки) | т/ч | 1 |
| Молотки | шт | 4 |
| Решетки (решетка и наковальня, установлено в лотке) | шт | 1 и 2 |
| Электрическая панель управления | ||
| Питание | Источник переменного тока 380/400 В / 3 фазы / 50 Гц + нейтраль. Прерыватель цепи с устройством защитного отключения на 630 А | |
| Сертификация | Электрическая панель управления сертифицирована по CEI 64-8 IEC60204-1 | |
| Внутренние электрические кабели сертифицированы по CEI 20-20 | ||
| Внешние электрические кабели (соединения между электрической панелью и машиной) сертифицированы по CEI 20-13 с двойной изоляцией | ||
| Гидравлическая система | ||
| Питание | Источник переменного тока 380/400 В/ 3 фазы / 50 Гц + нейтраль от электрической панели | |
| Мощность | кВт | 3 |
| Давление контура | бар | 120 |
| Масляный бак (дополненный фильтрами для возврата масла) | л | 100 |
| Гидравлический контур | Стальные и резиновые трубки SAE 100 R2 A/DIN-EN 853 2SN. Реверсивные клапаны безопасности установлены на цилиндрах, открывающих крышку | |
| Сертификация | Гидравлическая система соответствует следующим требованиям: | |
| Законы ЕЭС: 2006/42/CE, 2006/95/CE | ||
| Технические законы: UNI EN 982:2009, UNI EN 12100-1:2009, UNI EN 12100-2, UNI EN 982:2009, EN 50082-2, EN 50081-1, CEI EN 60204-1:2006 | ||
| VVP9/3 Динамический сепаратор | ||
| Пуск | 2 двигателя-вибратора по 5 кВт, трехфазное питание 220/380 В – 50 Гц | |
| Размеры (ШхД) | мм | 900х3000 |
| NGS5/8 Резиновая конвейерная лента (выгрузка резины) | ||
| Движение, 1 электродвигатель | В, Гц | 50, 220/380 |
| Рисунок резины | Рисунок «в елочку» | |
| Ширина | мм | 500 |
| Длина | м | 8 |
| OF7 Надленточный магнитный сепаратор | ||
| Мощность, 1 электродвигатель | кВт | 1,1 |
| Рисунок | Рисунок «в елочку» | |
| Размеры, Ширина рисунка | мм | 700 |
| NGS5/8 Резиновая конвейерная лента (выгрузка железа) | ||
| Движение, 1 электродвигатель, | В, Гц | 50, 220/380 |
| Рисунок резины | Рисунок «в елочку» | |
| Размеры (ширина) | мм | 500 |
| Длина | м | 8 |

Завод по очистке стали из шин до чистоты не менее 98%
Материал для переработки: Стальная проволока от использованных шин (без бортовой части шин грузовых автомобилей), содержащая максимум 25% резины и текстиль.
Место использования: Линии для переработки автомобильных шин, производственные предприятия, станции перегруза мусора, мусоросортировочные комплексы, полигоны.
Цель переработки: Стальная проволока очищается от резины и текстильного волокна (до 2% веса), следов резины и текстильного волокна, пыли.
Производительность: 1 тонна в час
Описание элементов завода:
Позиция 1.
Код: NGS5/9 - Резиновая конвейерная лента
Рама конвейера сделана из слегка изогнутой железной пластины и профилированных труб. Конструкция легкая, но в то же время прочная. Резиновая лента скользит по гладким роликам, закрепленным на раме. Лента приводится в движение электрическим двигателем, подключенным к редуктору. Поворотные барабаны для самовыравнивания ленты с противоскользящим резиновым покрытием роликов. Установлена на самовыравнивающихся стойках. Система выравнивания роликов с натяжением ленты.
Позиция 2.
Код: F5T - Специальная молотковая дробилка.
Молотковая дробилка предназначена для отделения стальной проволоки от использованных шин, повышая ценность конечной продукции и очищая ее от резины. Ее детали спроектированы и скомпонованы так, чтобы следовать принципам обработки стальной проволоки, сохраняя такие же по гибкости элементы, из каких состоит сама шина.
Запатентованная конструкция лотка позволяет быстрое и простое изменение обработки и безопасное техобслуживание.
Молотковая дробилка состоит из:
1. Загрузочной ленты с питателем
2. Камеры дробления
3. Рамы-держателя
4. Аварийной двери и защитных экранов
5. Электрической панели управления
6. Электрического двигателя
7. Гидравлической системы
1. Загрузочная лента с питателем
Подает материал в мельницу, дозирует его и предотвращает возможное засорение размольной камеры.
• Ее движение контролируется электрической панелью управления.
• Резиновая лента.
• Специальный питатель, установленный на высоком уровне, для более простой загрузки.
• Ее поднимает поперечная балка-опора из сплава HeA.
2. Камера дробления
• Мельница состоит из 1 крышки, 1 рамы-держателя, 1 ротора и 1 лотка. Эти детали полностью сделаны из конструкционной стали S355J2.
• Высокое качество переработки и очистки стальной проволоки (благодаря конструкции ротора и лотка).
• Гидравлическая блокировка крышки и рамы-держателя во время переработки. Эту систему можно легко разблокировать для технического обслуживания.
• Внутренняя сторона выполнена из противоизносной стали (эффективность измельчения, долговечность, простая и быстрая замена, экономия денег и времени).
3. Рама-держатель
• Выполнена из Fe510d.
• Балки сделаны из HeA.
• Дополнена антивибрационными стойками, лестницами и помостами с перилами.
• Оборудована кабелепроводами и гидравлической системой на стороне машины.
4. Аварийная дверь и защитные экраны
• Аварийная дверь контролируется системой управления программы.
• Защитные кожухи для движущихся компонентов (приводного ремня, блоков ротора и двигателя, махового колеса двигателя).
5. Электрическая панель управления
• Содержит в себе устройства управления и контроля, устройства включения питания и электрического привода, цепи управления безопасностью и систему ПЛК.
• Сенсорный экран для легкой настройки и визуализации рабочих параметров.
• Программа управления: регулирует процесс измельчения различных материалов; сообщает пользователю о периодических проверках; блокирует мельницу при необходимости.
6. Электрический двигатель
• Установленная мощность: 90 кВт
• Трапециевидный приводной ремень.
• Гибкая опора с системой гидравлического позиционирования.
7. Гидравлическая система
• Оборудована антивибрационными стойками.
• Трубки и кнопочная станция для управления следующими движениями:
открыть/закрыть крышку;
крепление крышек к раме-держателю;
движение гибкой опоры для натяжения ремня.
Преимущества:
• Прочная конструкция, созданная для эффективного измельчения
• Мельница открывается гидравлической системой, обеспечивая быстрый и простой доступ в камеру измельчения
• Двухуровневая рама-держатель для улучшения эффективности и повышения комфорта и безопасности при чистке и техническом обслуживании
• Загрузочная лента приводится в движение гидравлической системой. Специальная конфигурация, предотвращающая засорение камеры измельчения
• Ротор можно подцепить к крышке, чтобы поднять его для техобслуживания
• Ротор со взаимозаменяемыми молотами
• Запатентованный заменяемый лоток:
• быстрая и простая замена, которая позволяет различную обработку;
• быстрое, легкое и безопасное техобслуживание для уменьшения времени простоя;
• взаимозаменяемые решетки;
• легко устанавливаемая конструкция лотка для подстройки на различные рабочие процессы;
• Легко заменяемые устройства защиты;
• Комплекс программного управления;
• Для использования не нужна высокая квалификация персонала.
Позиция 3.
Код: VVP9/3 - Динамический сепаратор
Вибрационный стол, разработанное компанией, предназначенное для отделения стальной проволоки (выходящей из мельницы) от резины и текстильного волокна.
Позиция 4.
Код: NGS5/8 - Резиновая конвейерная лента (выгрузка резины)
Рама конвейера сделана из слегка изогнутой железной пластины и профилированных труб на электрической сварке. Конструкция легкая, но в то же время прочная. Резиновая лента скользит по гладким роликам, закрепленным на раме. Лента приводится в движение электрическим двигателем, подключенным к редуктору. Поворотные барабаны для самовыравнивания ленты, с противоскользящим резиновым покрытием роликов. Установлен на самовыравнивающихся стойках. Система выравнивания роликов с натяжением ленты.
Позиция 5.
Код: OF7 - Надленточный магнитный сепаратор
Рама сепаратора с верхней лентой представляет собой прочную конструкцию из 160-мм U-образного железного профиля, что обеспечивает устойчивость и в то же время легковесность машины. Внутри сепаратора активно перманентное не отключаемое магнитное поле. Система дополнена резиновой лентой с замкнутыми кольцами на термической сварке и предназначена для извлечения ферромагнетиков. Машина по извлечению ферромагнетиков приводится в движение электродвигателем, подключенным к редуктору.
Позиция 6.
Код: NGS5/8 - Резиновая конвейерная лента (выгрузка железа)
Рама конвейера сделана из слегка изогнутой железной пластины и профилированных труб на электрической сварке. Конструкция легкая, но в то же время прочная. Резиновая лента скользит по гладким роликам, закрепленным на раме. Лента приводится в движение электрическим двигателем, подключенным к редуктору. Поворотные барабаны для самовыравнивания ленты, с противоскользящим резиновым покрытием роликов. Установлен на самовыравнивающихся стойках. Система выравнивания роликов с натяжением ленты.
| Технические характеристики | Единицы измерения | Параметры |
| NGS5/9 - Резиновая конвейерная лента | ||
| Двигатель | В, Гц | 50, 220/380 |
| Рисунок резины | Рисунок «в елочку» | |
| Ширина рисунка | мм | 500 |
| Длина рисунка | м | 9 |
| F5T Специальная молотковая дробилка | ||
| Электродвигатель с устройством плавного пуска | кВт | 90 |
| Передача | Трапециевидный приводной ремень | |
| Камера загрузки | мм | 520x430 |
| Вес | кг | 5000 |
| Производительность (в зависимости от перерабатываемого материала и типа решетки) | т/ч | 1 |
| Молотки | шт | 4 |
| Решетки (решетка и наковальня, установлено в лотке) | шт | 1 и 2 |
| Электрическая панель управления | ||
| Питание | Источник переменного тока 380/400 В / 3 фазы / 50 Гц + нейтраль. Прерыватель цепи с устройством защитного отключения на 630 А | |
| Сертификация | Электрическая панель управления сертифицирована по CEI 64-8 IEC60204-1 | |
| Внутренние электрические кабели сертифицированы по CEI 20-20 | ||
| Внешние электрические кабели (соединения между электрической панелью и машиной) сертифицированы по CEI 20-13 с двойной изоляцией | ||
| Гидравлическая система | ||
| Питание | Источник переменного тока 380/400 В/ 3 фазы / 50 Гц + нейтраль от электрической панели | |
| Мощность | кВт | 3 |
| Давление контура | бар | 120 |
| Масляный бак (дополненный фильтрами для возврата масла) | л | 100 |
| Гидравлический контур | Стальные и резиновые трубки SAE 100 R2 A/DIN-EN 853 2SN. Реверсивные клапаны безопасности установлены на цилиндрах, открывающих крышку | |
| Сертификация | Гидравлическая система соответствует следующим требованиям: | |
| Законы ЕЭС: 2006/42/CE, 2006/95/CE | ||
| Технические законы: UNI EN 982:2009, UNI EN 12100-1:2009, UNI EN 12100-2, UNI EN 982:2009, EN 50082-2, EN 50081-1, CEI EN 60204-1:2006 | ||
| VVP9/3 Динамический сепаратор | ||
| Пуск | 2 двигателя-вибратора по 5 кВт, трехфазное питание 220/380 В – 50 Гц | |
| Размеры (ШхД) | мм | 900х3000 |
| NGS5/8 Резиновая конвейерная лента (выгрузка резины) | ||
| Движение, 1 электродвигатель | В, Гц | 50, 220/380 |
| Рисунок резины | Рисунок «в елочку» | |
| Ширина | мм | 500 |
| Длина | м | 8 |
| OF7 Надленточный магнитный сепаратор | ||
| Мощность, 1 электродвигатель | кВт | 1,1 |
| Рисунок | Рисунок «в елочку» | |
| Размеры, Ширина рисунка | мм | 700 |
| NGS5/8 Резиновая конвейерная лента (выгрузка железа) | ||
| Движение, 1 электродвигатель, | В, Гц | 50, 220/380 |
| Рисунок резины | Рисунок «в елочку» | |
| Размеры (ширина) | мм | 500 |
| Длина | м | 8 |
